售楼小姐透露:这5类浪费面积的户型不要买!

2017-03-03 08:56:53   来源:搜狐焦点网

排名前列类:户型的某个区域面积过大

①厨房或者客厅面积过大



这个户型的厨房面积足足有9㎡,比餐厅的面积还要大,一般厨房的面积在4-6㎡就足够了。多了就是浪费面积,除了做饭时间,想必也不会有人在厨房待着吧。

②主卧面积过大



主卧的面积比两个卧室的面积之和还要大,这样不合理的布局,导致北边卧室的房间,可能连一张床都放不下,还怎么住人,主卧过大浪费面积没有之一。

第二类:室内走廊太长



这样的户型,铺个红地毯,直接就可以在家里走秀了。室内有个这么狭长的走道,动静交融,没有私密性。由于这个走道是活动区,还不好用什么装饰来弥补,只能眼看着浪费空间了。

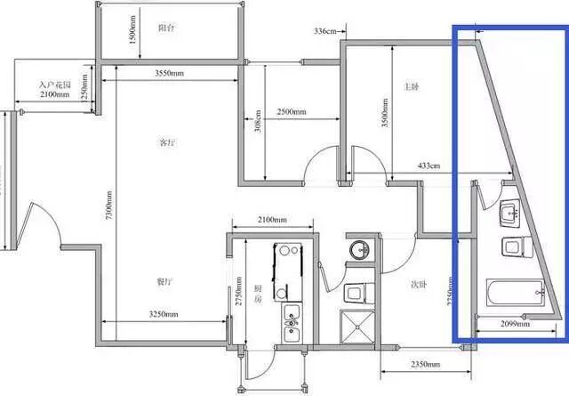
第三类:有边角的户型



有斜角的户型,就是典型的浪费面积和金钱的户型。毕竟有斜角的地方不好放置电器或者家具,家里空出一个角,会怎么看怎么别扭的。

第四类:阳台在承重区



承重墙的位置带了一个阳台,完全没有必要。次卧还有一个大阳台,显得很多余,不仅会导致次卧进深变大,采光也会受影响,重要的是还没有办法改造。

第五类:外立面不规则



这种户型虽然很少见,但是市面上仍然是有的。看似有个入户花园很实用,其实不然,尤其是还开了两个门,浪费面积。

总结:不管是刚需、改善还是投资客,买房时选户型一定要多看、多了解、多研究,毕竟它会影响到自己的生活起居各个方面,千万不能糊里糊涂就买了。